Conseil d'Architecture, d'Urbanisme et de l'Environnement des Deux-Sèvres

Rue des Couturières ©Jean Merlet

Accueil > Fiches réalisations architecture > Quartier de la Gourre d’or

Quartier de la Gourre d’or


Cette opération est implantée sur une friche industrielle, dans un secteur pavillonnaire et à proximité directe d’un espace boisé.

Quelques mots sur le programme

Construction de 11 logements locatifs, 8 T3 et 3 T4.
Logements groupés de type individuel, isolés ou accolés, de plain-pied.
Label BBC, Effinergie 2005.
Aménagement des voiries, réseaux et espaces paysagers

  • Aménagement des espaces publics en régie © CAUE79

[ Cliquer sur les images pour les agrandir ]

Principes d’aménagement

  • Voirie véhicules optimisée,
  • Accessibilité des cheminements,
  • Collecte des eaux pluviales avec système de noues et de bassin paysager,
  • Eclairage public LED avec détection,
  • Balisage intégré aux mâts,
  • Aménagement paysager d’essences locales en gestion différenciée,
  • Bois des ouvrages VRD en circuit court, issus de la gestion forestière de la commune.

Principes architecturaux

  • Logements compacts orientés au sud,
  • Protection solaire des baies,
  • Mixité maçonnerie-ossature bois des parois,
  • Couvertures monopentes et toitures terrasses,
  • Isolation renforcée : sols, parois et plafonds,
  • Ventilation mécanique type hygro,
  • Chauffage et production d’eau chaude gaz à condensation.

 

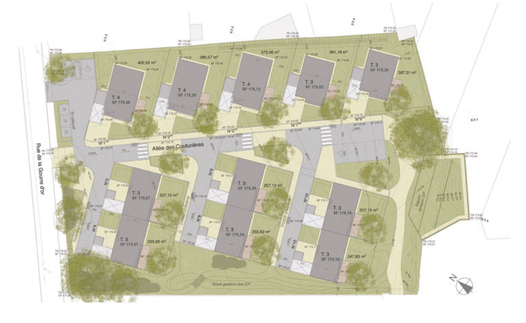
  • Illustration des principes d’aménagements en plan masse © Jean Merlet
  • Logements isolés © Jean Merlet
  • Logements accolés © Jean Merlet

[ Cliquer sur les images pour les agrandir ]

Pour aller plus loin

Les conseillers du CAUE79 sont à votre écoute pour vous conseiller et vous accompagner dans la réalisation de vos projets. Pour faire appel au CAUE : par mail à caue@caue79.fr ou par téléphone au 05 49 28 06 28

Mémento
  • Maître d’ouvrage : OPAH Habitat Nord Deux-Sèvres (bâtiment) / Commune de Cerizay (VRD) 4797 hab. (INSEE, 2021)
  • Concepteur : Atelier d’Architecture Jean Merlet
  • Année de réalisation : 2012
  • Coûts de travaux bâtiment : 1,03MEurosH.T.
  • Coûts de travaux VRD : 0,18MEuros H.T.
Les + du projet
  • Opération globale : bâti et aménagement urbain
  • Logement social
  • Qualité des espaces extérieurs privatifs
  • Voiries partagées
  • Bassin paysager d’infiltration des eaux pluviales
  • Réalisation en régie du mobilier urbain
Téléchargements