Conseil d'Architecture, d'Urbanisme et de l'Environnement des Deux-Sèvres

Plan masse de l’opération de la Noue du Prieuré, conception Atelier d’Architecture Jean Merlet ©Jean Merlet

Accueil > Fiches réalisations architecture > Rue de la Noue du Prieuré

Rue de la Noue du Prieuré


Une opération dense où le confort d’usage est prioritaire par le traitement des vues, de l’éclairage naturel et des espaces privatifs.

Quelques mots sur le programme

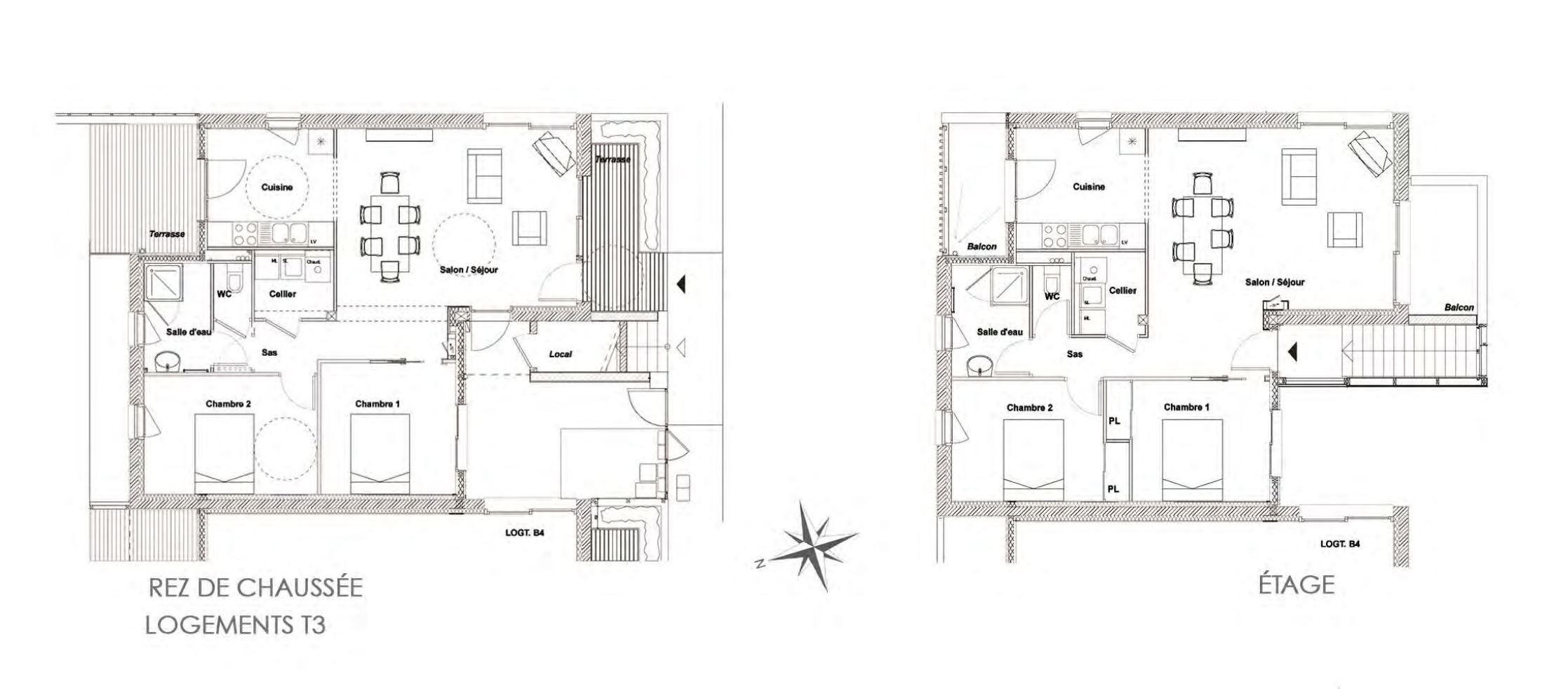
Construction de 18 logements T3, 4 logements collectifs et 14 logements individuels superposés, sur deux niveaux.
Label BBC.
Création d’une rue en «espace partagé» : voirie, réseaux et aménagements paysagers. Intégration de tous les ouvrages techniques de réseaux et comptages.

  • T3 superposés, marquant l’entrée de la rue © Jean Merlet

[ Cliquer sur les images pour les agrandir ]

Principes d’aménagement

Création d’une nouvelle voie de liaison traversant l’îlot, avec aménagement en voirie partagée, réseaux, mobilier urbain, accessibilité renforcée de l’ensemble des accès aux logements, des logements eux-mêmes et de la voirie.

Principes architecturaux des T3 superposés

Ensemble constitué de 9 blocs de deux logements locatifs, sur 2 niveaux, avec accès individualisés, cours, jardins et terrasses privatives. Logement traversant nord-sud, avec une triple orientation par un jeu de redents qui crée des espaces privatifs, ouvre et protège des vues. La conception générale valorise l’identification de chaque immeuble et logement dans une opération de densification urbaine. Ainsi, les ouvrages annexes, auvents, balcons, brisesoleil, claustras participent à la protection de l’intimité tout en assurant un confort d’été.

  • Plans masse © Jean Merlet
  • T3 duplex isolés© Jean Merlet
  • T3 accolés, gestion de l’intimité, Jean Merler architecte © CAUE79

[ Cliquer sur les images pour les agrandir ]

Pour aller plus loin

Les conseillers du CAUE 79 sont à votre écoute pour vous conseiller et vous accompagner dans la réalisation de vos projets. Pour faire appel au CAUE : par mail à caue@caue79.fr ou par téléphone au 05 49 28 06 28

Mémento
  • Maître d’ouvrage : OPH Sèvre-Loire Habitat (bâtiments) / Commune de Cerizay (VRD), 4797 hab. (INSEE, 2021).
  • Concepteur : Atelier d’Architecture Jean Merlet.
  • Année de réalisation : 2014.
  • Coûts de travaux bâtiment : 1,62MEurosH.T.
  • Coûts de travaux VRD : 165 340 Euros H.T.
Les + du projet
  • Opération globale : bâti et aménagement urbain
  • Opération dense en centre ville
  • Mixité des typologies (logements superposés et collectifs)
  • Logement social
  • Espace privatif extérieur
  • Gestion de l’intimité et des vues
  • Confort d’été et d’hiver
  • Identification des logements