Conseil d'Architecture, d'Urbanisme et de l'Environnement des Deux-Sèvres

Réhabilitation de logement en centre bourg © CAUE79

Accueil > Fiches réalisations aménagements > Requalification de lotissement

Requalification de lotissement


La collectivité a donné une nouvelle image au lotissement de la Fougère tout en améliorant la qualité d’usage de ses habitants.

Quelques mots sur le programme

La Commune de Germond-Rouvre a requalifié le lotissement de la Fougère en retravaillant les espaces publics. Les travaux ont consisté à effacer les réseaux, à reprofiler la voirie, à réorganiser le stationnement et à végétaliser.

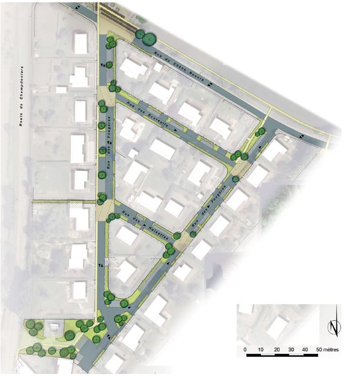
  • Plan masse du lotissement de la Fougère © CAUE79

[ Cliquer sur les images pour les agrandir ]

Les enjeux

Le parti d’aménagement paysager répond à quatre enjeux majeurs :

  • Un partage modal des rues en fonction de leur fréquentation automobile et piétonne; l’ensemble du lotissement est traité en zone 20. Sur la rue des Fougères Ouest, les espaces piétons et véhicules sont différenciés et la circulation s’opère à double sens. Sur la rue des Fougères Est et les rues des Écureuils et des Noisettes, piétons et véhicules se partagent un même espace, la circulation s’opère à sens unique.
  • Des rues rythmées par des principes de placettes, incitant à des vitesses de déplacement automobile apaisées ; implantées au niveau des différents carrefours, celles-ci sont l’occasion de déhanchements de chaussée cassant les lignes droites initiales.
  • Des aires de stationnement réparties sur l’ensemble du lotissement, respectant le principe d’une à deux places à proximité de chaque entrée de lot.
  • Une végétation contenue par la plantation d’arbres en épaulement des placettes et plus occasionnellement en ponctuation des bandes de stationnement. La densité arborée est plus importante en partie Sud, dessinant un fond de scène végétal qualitatif et favorisant l’articulation avec l’espace paysager.

  • Avant - après lotissement de la Fougère
  • Avant - après lotissement de la Fougère
  • Avant - après lotissement de la Fougère

[ Cliquer sur les images pour les agrandir ]

Pour aller plus loin

Les conseillers du CAUE79 sont à votre écoute pour vous conseiller et vous accompagner dans la réalisation de vos projets. Pour faire appel au CAUE : par mail à caue@caue79.fr ou par téléphone au 05 49 28 06 28

Mémento
  • Maître d’ouvrage : Commune de Germond-Rouvre 1193 hab. (INSEE, 2021)
  • Concepteur :Canopée-Aréa (Stephanie Jarny) paysage/ SITEA Conseil (VRD)
  • Année de réalisation : 2019
  • Coûts de travaux : 220 000 € HT
Les + du projet
  • Circulations apaisées et partagées
  • Végétalisation
  • Stationnements réorganisés
Cheminement piéton © CAUE79

Cheminement piéton © CAUE79