Accueil > Fiches réalisations aménagements > Nouveau quartier d’habitations
Pompaire (79)
Un nouveau quartier particulièrement verdoyant proposant des espaces collectifs conviviaux et généreux.
En 2008, les élus de Pompaire ont souhaité construire un quartier intégré dans le paysage et inscrit fortement dans le développement durable, dans l’esprit d’un éco-quartier. Grâce à une Approche Environnementale de l’Urbanisme (AEU) et une conception respectueuse du site, le quartier s’insère harmonieusement dans le milieu naturel. « Nous souhaitons que ces futurs habitants de la commune, au moment de construire, aient conscience des enjeux énergétiques et environnementaux de demain », expliquait le maire, Jacques Dieumegard. « Évidemment, sans rien leur imposer, nous voulons juste qu’ils construisent intelligemment ».

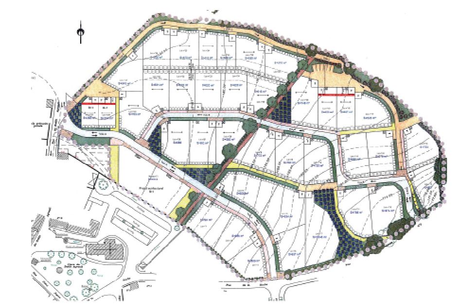
Plan masse du projet © Groupe Etude Nicolet / Urban Hymns
La conception du quartier s’appuie sur un important réseau d’espaces naturels : des bosquets sur des noues vouées à la régulation des eaux pluviales, des haies bocagères existantes et nouvelles comme brise-vent, des haies taillées en guise de clôture à l’avant des parcelles et des haies fleuries en accompagnement des cheminements piétons. La plupart des voies du quartier sont accompagnées de bandes enherbées, renforçant l’image verdoyante en cohérence avec la campagne environnante.
Tous les espaces végétalisés ont fait l’objet d’un pré-verdissement.
Plusieurs espaces publics ponctuent le quartier permettant aux habitants de se rassembler. Le mobilier est simple, les espaces sont plantés et les matériaux locaux sont favorisés.
Le quartier est entièrement maillé par un réseau de cheminements piétons souvent déconnectés des voiries pour des déplacements sécurisés et agréables.
[Cliquez sur les photographies pour afficher un diaporama ]
[ Cliquer sur les images pour les agrandir ]
Les conseillers du CAUE79 sont à votre écoute pour vous conseiller et vous accompagner dans la réalisation de vos projets. Pour faire appel au CAUE : par mail à caue@caue79.fr ou par téléphone au 05 49 28 06 28
Localisation