Accueil > Fiches réalisations aménagements > Abords de salle des fêtes
La Foye-Monjault (79)
Un projet créant un véritable écrin de verdure apaisé pour la salle des fêtes communale, renforçant le lien avec le paysage rural.
Lors de la construction de la salle des fêtes, les abords n’avaient pas été pensés. L’objectif de ce projet était donc, en toute connaissance des problématiques d’usages, de créer un paysage verdoyant et apaisé, adapté aux rencontres et à la convivialité.
Un travail de cheminements et de liaisons devait s’opérer avec la mairie et l’école toute proche. Le lien avec le paysage agricole environnant devait être le support d’un projet simple, en cohérence avec les moyens de la commune.

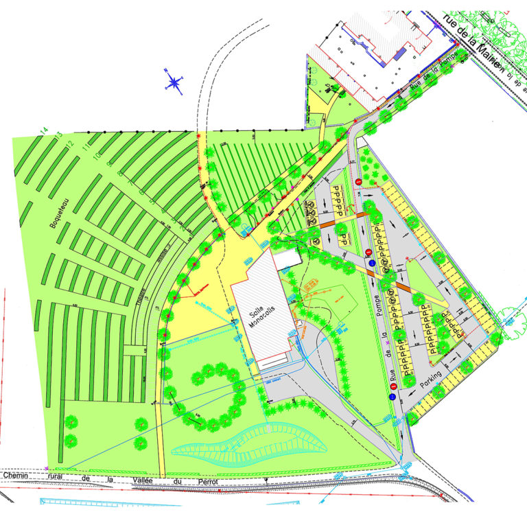
Plan de l’aménagement © Jean-Louis Vacher
La salle des fêtes se trouve en limite du bourg, à l’arrière de la mairie et de l’école. Beaucoup d’éléments existants, tels que les murets de pierres, les haies bocagères, les arbres isolés ont été préservés et ont permis d’apporter une vraie plus-value au projet. un des parkings est ainsi intégré dans une parcelle ceinturée de murs en pierre, seulement percés pour assurer l’accès des visiteurs.
L’importance accordée aux plantations se traduit par la diversité des strates végétales utilisées : bandes enherbées, vivaces, arbustes, frênes en fond de parcelle…
En lien avec l’histoire locale, les rangs de vigne plantés autour de la salle structurent le site en libérant les vues. Des arbres fruitiers complètent l’aménagement pour le plus grand plaisir des usagers.
[Cliquez sur les photographies pour afficher un diaporama ]
[ Cliquer sur les images pour les agrandir ]
Les conseillers du CAUE79 sont à votre écoute pour vous conseiller et vous accompagner dans la réalisation de vos projets. Pour faire appel au CAUE : par mail à caue@caue79.fr ou par téléphone au 05 49 28 06 28
Localisation